SEAN SOLOWSKI ARCHITECT
House & Home
Neighbourhood & Community
Art & Installations
About
Contact
SEAN SOLOWSKI ARCHITECT
House & Home
Neighbourhood & Community
Art & Installations
About
Contact
Option2_Front.jpg

Ledge House

Nestled Amongst the Trees with Expansive Views to the Horizon.

Site1.jpg
Site_Section.jpg
Sketch2b.jpg
Elevation1.jpg
Elevation2.jpg
Option2_Entry.jpg
Site2.jpg
LivingRoom4b.jpg
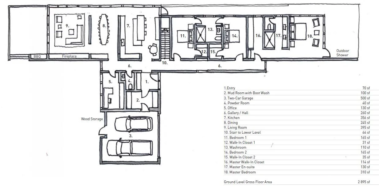
Ground.jpg
Lower_Level.jpg
Access_Road.jpg
Site.jpg
All Restore: The New Garage Davenport Entry Glencairn Residence Bedford Park Residence Admiral Road Teeny Tiny Living Large Summerhill Gardens Echo House Ledge House
Restore: The New Garage Davenport Entry Glencairn Residence Bedford Park Residence Admiral Road Teeny Tiny Living Large Summerhill Gardens Echo House Ledge House